1944 Mass Ave
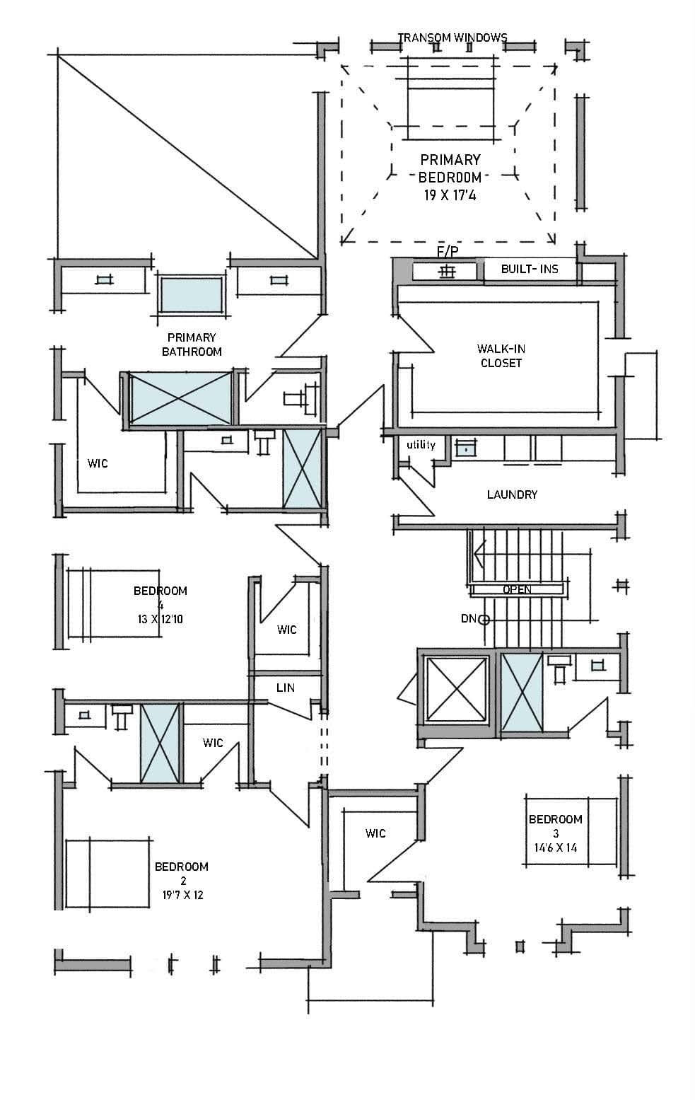
LISTING DETAILS
11,250 SF lot
6,840 SF on 3 levels
6 Bedrooms
6 Full Baths
2 car garage
3 floors
Fully finished basement
with flex space, recreation room
and en-suite bedroom
September 2025 Delivery
LISTING DETAILS
11,250 SF lot
6,840 SF on 3 levels
6 Bedrooms
6 Full Baths
2 car garage
3 floors
Fully finished basement
with flex space, recreation room
and en-suite bedroom
September 2025 Delivery